| Zapytanie ofertowe | |
|---|---|
| Zmiana terminu składania ofert Data publikacji: 02.12.2022 |
Pobierz |
| Zapytanie ofertowe Data publikacji: 30.11.2022 |
Pobierz |
| Umowa Data publikacji: 30.11.2022 |
Pobierz |
| Formularz ofertowy Data publikacji: 30.11.2022 |
Pobierz |
| Informacja o RODO Data publikacji: 30.11.2022 |
Pobierz |
| Załączniki | |
| Opis przedmiotu zamówienia Data publikacji: 30.11.2022 |
Pobierz |
| Opis przedmiotu zamówienia(aktualny) Data publikacji: 02.12.2022 |
Pobierz |
| Załącznik do formularza ofertowego Data publikacji: 30.11.2022 |
Pobierz |
| Załącznik do formularza ofertowego(aktualny) Data publikacji: 02.12.2022 |
Pobierz |
| Rzut wentylacji RTG Pawilon C – Szpital Mirowska 15 Data publikacji: 30.11.2022 |
Pobierz |
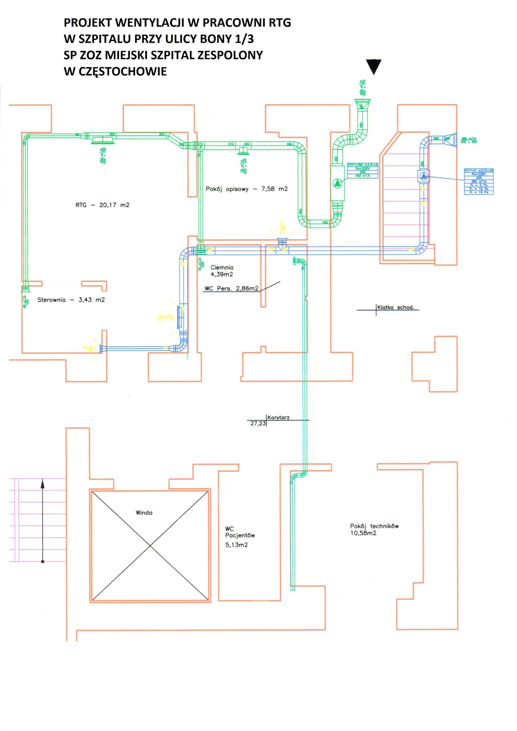
| Rzut wentylacji RTG – Szpital Bony 1/3 Data publikacji: 30.11.2022 |
Pobierz |
| Wyniki |



